创维海外发展大厦
5/9号线前湾站D出口写字楼租赁
面积80-200-400-780-1600-2700-10000㎡
租金均价99-128元㎡
自带1.4万㎡商业楼下公园环绕

项目基础信息
✴项目总占地:11398.40㎡
✴项目总建面:92210㎡
✴高度:1号楼120米(26层3.7万㎡)、2号楼45米(8层1万㎡)
✴标准层高:4.5米
✴标准层面积:1600-2700㎡
✴大堂:挑高12米(400㎡)
✴电梯:上海三菱(复式3梯,其他楼层4梯+2消防梯)
✴管理费:25元/㎡
✴空调费:15元/㎡(早8晚8)
✴停车位:406个(月卡1000元)

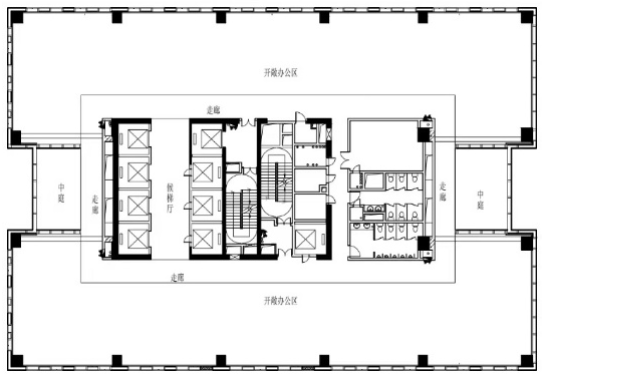
1号楼4楼精装户型:
面积200-368-458㎡(租金99-128元/㎡)




1号楼半层787㎡起租 (毛坯)
11、12、13、14、15、16、17、18楼(租金116元/㎡)



1号楼整层约2500㎡起租
5、6、7、8楼(租112元/㎡)




1号楼复式 :双层复式2850㎡,租金118元/㎡
21-22楼(21楼半边挑高9米)
23-24楼(23楼半边挑高9米)
25-26楼(25楼半边挑高9米)
适合做高空展厅、阶梯培训室,内部可建旋转楼梯,紧连楼层








