创智云城
136万㎡新兴产业智慧之城
创智云城是公司招商运营的旗舰项目,位于广深港澳科技创新走廊关键节点,融合办公、商业、公寓等多元业态的建筑集群,项目占地13.7万㎡,建筑面积136万㎡,分三期4个标段

在售产品:
散售:500-2135㎡
小独栋:15977.05㎡
散售:均价4.4万/㎡
小独栋:总价7亿元
【项目业态】
总建筑面积:约136万㎡
甲级办公:32.5万㎡
BLOCK办公:18万㎡
SOHO:19.5万㎡
公寓:20万㎡
商业:10万㎡
停车位:5600个

(图中1栋A-G座为一期产品,2栋及3栋A-E座为二期1标段;4栋AB座及5栋为二期2标段;)
🔹 甲级写字楼4座(绿色部分)
🔹 SOHO办公楼3座(蓝色部分)
🔹 BLOCK办公楼7座(黄色部分)
🔹 商务公寓5座(紫色部分)
-----------------------------

一期A2#、A7#基础信息
【建筑面积】约1.5万㎡
【总 楼 高】40F/约170米
【大堂高度】11米
【整层面积】约2000㎡/层
【层 高】4米
【电 梯】蒂森品牌18部
【物业管理】22元/㎡/月
【空 调】开利中央空调13元/㎡(8:00-19:00)
【停 车 位】 一期1711个
【交 付】毛坯交付
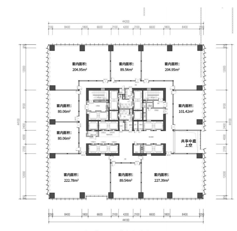
🔷 A2#A7#低区平面图

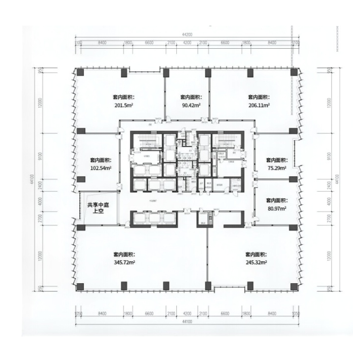
🔷 A2#A7#中区平面图

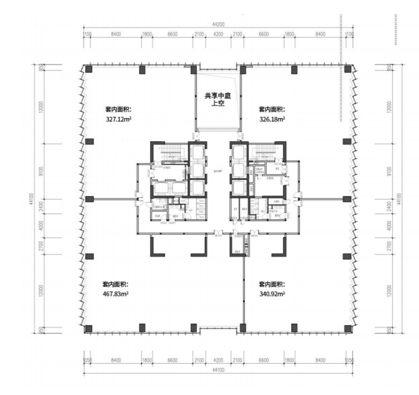
🔷 A2#A7#高区平面图

————————————————————
⭐️ 二期2标段在售整售产品
【4A#/4B#/4C#/4AB裙楼/5A#/5B#】
(4A#、4B#为50-110㎡SOHO办公)

🔹4A# 共50058㎡ (9-41F)
🔹4B# 共50672㎡(9-41F)
🔹4C# (盒子6、7F)5251㎡
🔹4#AB(裙楼) 11335㎡
🔹 5A# 17187㎡ (5-13F)
🔹 5B# 18564㎡ (5-13F)
【销售价格】均价4.4万/㎡
--------------------------


【多层立体的产品布局模式 】
项目根据企业的发展阶段及需求,将园区分层处理。底层打造活力商业街区;向上依次为中小型企业,大中型企业,大型企业及伟大企业。整个标段从下到上,公共度递减,私密度递增,使用人群各取所需,最大化提升产品附加值。

【区位优势】
创智云城所在的留仙洞片区更新前以工业为主,周边北、西、南三条主干路已经建成,政府将深圳西部地区定位为比肩前海、蛇口的城市新一轮战略性增长地区,它们将共同形成城市新的经济增长轴。在此背景下,项目打造造为“新一代信息产业的低碳社区,新一代信息技术产业集聚的先锋高地,新一代信息技术全面应用的全球样板,先进城市建设模式的示范区”
创智云城位于深圳市南山区留仙洞总部基地西北角,北临深圳职业技术学院西校区,西靠中兴通讯工业园与健康主题公园,东侧和南侧为深圳市大疆创新科技有限公司总部和深圳绿廊公园。

【配套设施】
文化配套:名商高尔夫球会、沙河高尔夫球会、深圳大学科技图书馆、大学城体育中心、西丽文体中心(规划中)等大型公共文化场地环伺,拥享便捷休闲体验;
生态配套:三山一河一湖六公园:洞尾山、白坑山、塘朗山、西乡河、西丽湖、中兴运动公园、西丽生态公园、留仙公园、石鼓山公园、松坪山公园、塘朗山公园等城市自然生态环绕,优享自然品质舒居;
商业配套:自带10万㎡大体量活力商业,已吸引50余家品牌商家入驻,包括星巴克、奈雪、麦当劳等品牌;邻8万㎡万科里醇熟购物商场,周边近享天虹商场、益田假日购物中心、悦方广场等繁华商业配套,享受全面便捷.

【A2#35F交付展示】





【项目图集】



