灵星雨科技大厦/开发商直租/内含租金补贴领取攻略
🌟 光明产业集群地,多重产业政策助力企业发展
🏬 5A甲级办公场地,精装毛坯定制装修自由选择,面积自由组合
💼 商研公办一体化,吃住商务活动宴请配套齐全,缩短
🤖人工智能特色创建园,可享受人工智能相关行业政策福利,
🛬低空经济重点园区,已入驻多家低空经济相关企业

人工智能企业补贴领取攻略

项目地址:光明区光明街道东周社区光电北路298号
总部楼宇,实力企业
灵星雨科技大厦由深圳市灵星雨科技开发有限公司建设并自营管理,灵星雨科技创立于2002年,致力于LED显示屏控制与显示领域产品的开发、生产、销售与技术服务;作为世界领先水平的专业LED控制系统提供商,公司产品先后应用于国庆天安门阅兵、宝格丽全球巡展、室内大型场景等。
◆立体交通
高铁:光明城高铁站直线距离5km,深圳北站20km,30分钟直达广深港
地铁:距离6号线楼村站900米,连通宝安、光明、龙华、福田、罗湖等区
高速:龙大、龙光、外环高速,畅通全城
公交:附近公交站台康佳科技、华夏聚丰路口等,线路有B975,B960,720等
◆生态配套
生态:大屏障森林公园,阳台山森林公园
科技:科技馆,规划中的科学城,科学公园
生活:万达广场,蓝鲸世界,光明大仟里购物中心

◆项目一览
项目详情:
项目总建面:10万㎡
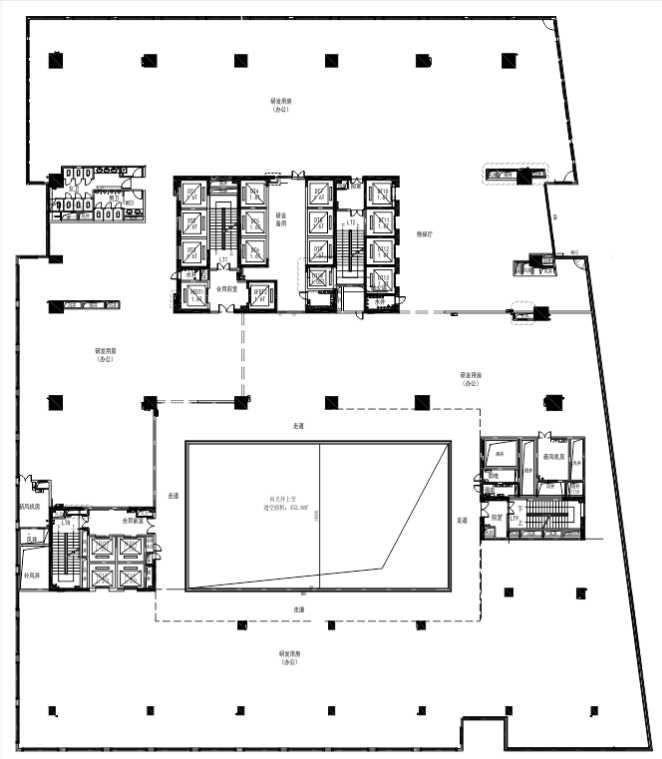
标准层平面:3980.65/2327.46㎡
总楼层:31层
层高:3.95m
大堂高度:11m
使用率:70%
外观:【中控双银-LOE-E】玻璃幕墙
电梯:22部(进口三菱电梯)
车位:470个
空调:中央空调
业态分布:1-3层商业、4-5楼公寓、6楼共享空间、7-9酒店、11-31办公、32层空中花园、33层停机坪
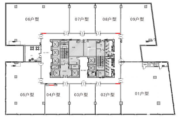
面积划分:75㎡-120㎡-160㎡-330㎡-420㎡-2200㎡-5800㎡(大小可随意组合)
楼宇环境展示
外立面

一楼大堂


电梯厅

精装户型实景图




园区配套及服务

楼层户型图展示
商业平面图

精装楼层户型图

毛坯楼层户型图


